Беседка Мария
Описание
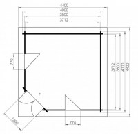
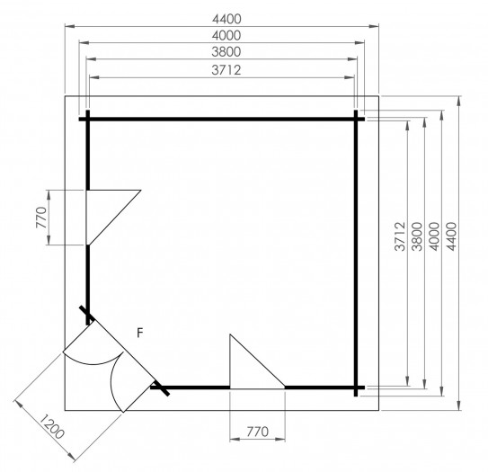
Описание товара:
- Внешние размеры: 400 x 400 см
- Размер основания: 380 x 380 см
- Высота боковины: около 205 см
- Общая высота: около 296 см
- Полезная площадь: около 13,2 м²
- Емкость: около 36,5 м³
- Двойная дверь : приблизительно 114 x 180 см
- 2x окно поворота / наклона: около 71 x 105 см
- Толщина стенки: 44 мм


_200x200.jpg)



