баня гомель 45 мм
Описание
описание продукта
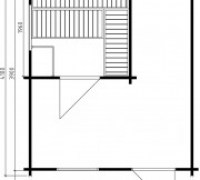
| Внешняя ширина: | 3,5 м (11 '5 ") |
| Внешняя глубина: | 4,1 м (13 '5 ") |
| Внутренняя обрезные Высота: | 2,2 м (7 '2 ") |
| Высота хребта: | 2,8 м (9 '2 ") |
| Толщина стен: | 50 мм |
| Внутренняя Площадь: | 12,5 m², включая дополнительные сауны 3,9 м². |
| Крыша: | Ca 22 м² вкл. черный рубероид, 18 мм. Свес крыши 1,2 м (3 '11 "). |
| Пол: | 28 мм |
| Дверь Размер отверстия: | 0,84 х 1,96 м; сауна дверь 0,7 х 1,94 м |
| стиль двери | Часть застекленная, одинарный; Специальные двери сауны изготовлены из закаленного стекла 8 мм (безопасное стекло), с легким бронзовым отливом. |
| Количество окон: | 1 отверстие (0,8 х 1,14 м) |
| Остекление Материал: | 3 мм Real Стекло (с двойным остеклением) |
| Материал: | Открытый сауны сделаны из медленного выращенного северная ель, необработанной. |
| Дополнительная информация: | Обработанные фундаментный брус, брекеты ветер, комплект для сборки, реальные стекла в окнах и дверях, цилиндрового замка, инструкция продукта, 5 лет гарантии. Самосборка сад сауна кабина. |
| Внутренняя Сауна: | 1,9 х 1,9 м (6 '2 "х 6" 2 "). Все наши стандартные кабинах поставляются с изолированным потолке сауны (абсолютно необходимо), скамейки и печного охранником из лучших выбранного Ели, саун, подголовниках, деревянный пол решетки и специальной двери сауны из 8-мм закаленного стекла (безопасное стекло), с учетом бронза tint- просто добавить один из рекомендованных каменки Harvia, чтобы полностью завершить сауна Пакет для 4-5 купальщиков. |

