Баня каркасная 1
Описание
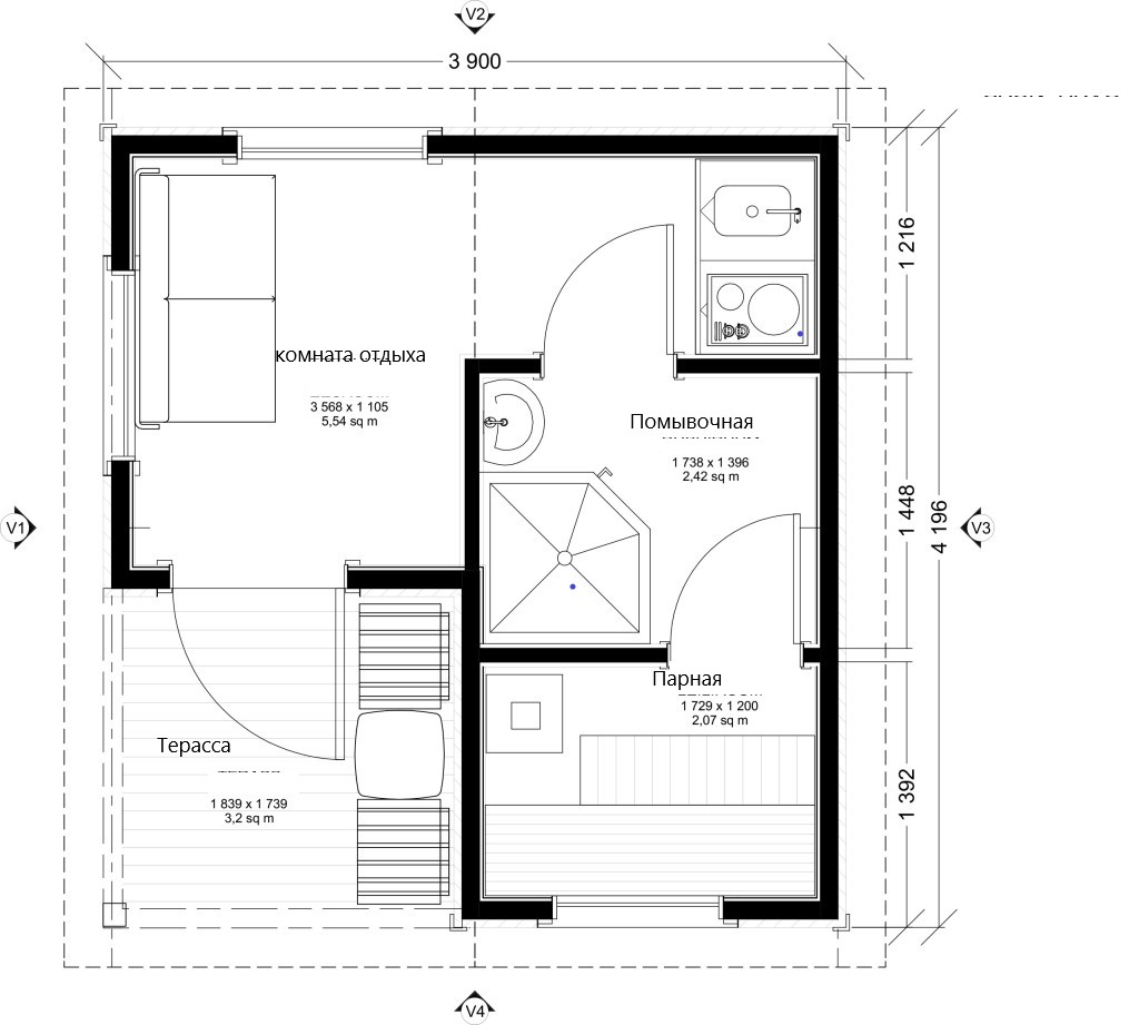
Размеры: 390 x 410 см.
Площадь здания: 16,34 м2.
Склон крыши: 18 °.
Площадь пола: 10 м2.
Комнаты: 3
Терраса: 3,2 м2.
Стандартный пакет включает в себя:
- Утепленный пол 100мм
- Утепленный потолок 150 мм
- Терраса, по плану
- наружные стены 150 мм обшиты имитацией бруса либо блокхаусом 20мм
- Крыша с битумной черепицей
- Доска пола 27 мм
- Деревянная входная дверь
- Деревянные окна
- парная обшита вагонкой лиственных пород
- Документация




