Обратная связь

Баня из двойного бруса 26

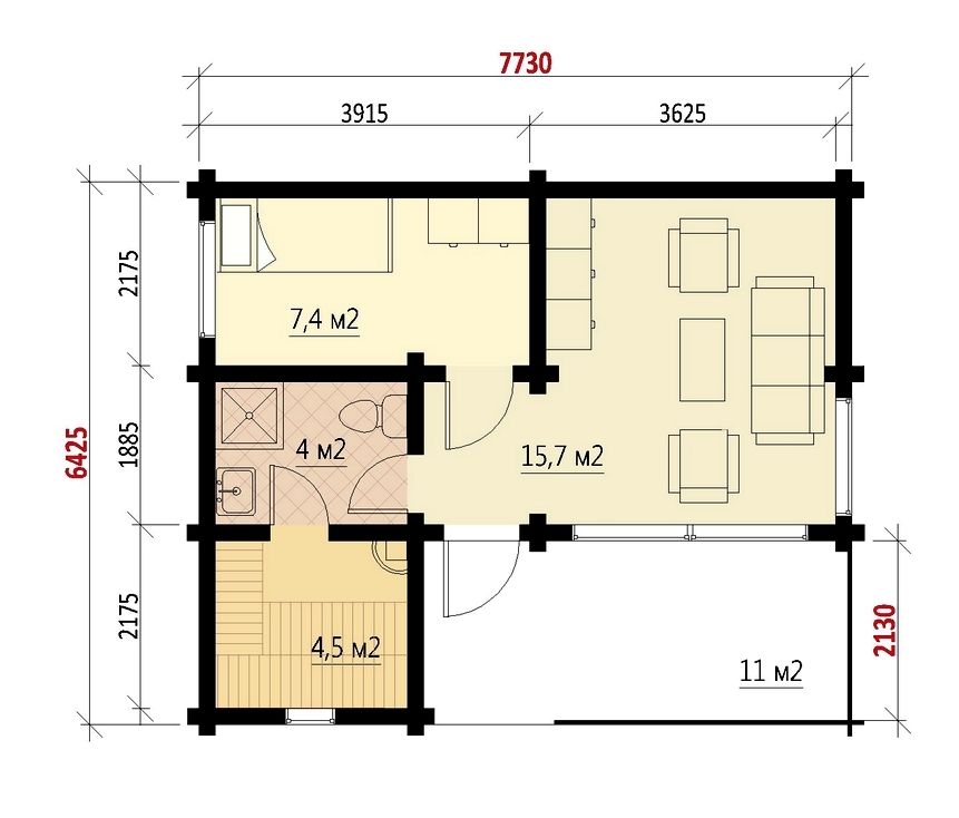
26__-_баня

баня из двойного бруса 26


Preloader

Данная  технология домостроения «Двойной брус» известна более 20 лет. Брус изготавливается на современных четырехсторонних фрезерных станках, в качестве утеплителя используется Эковата, методом задувания в уже возведенные стены.

Высокие эксплуатационные свойства достигаются благодаря, так называемой, двухрядной укладке шпунтованной сухой и строганной доски в переруб, толщина доски 44мм, а её ширина 185мм. Данная конструкция получается очень крепкой, так как все соединения изготовлены с высокой точностью на заводе. Доска в доску входит очень плотно, в замковое соединение и в продольный профиль (шип в паз) и не требует нагелей, клея, гвоздей и межвенцовых уплотнителей. Таким образом, образовывается общая пространственная жёсткость, и мы получаем жесткую полую конструкцию с достаточно толстыми и массивными деревянными боковыми стенами, которые уже не требуют отделки, не растрескиваются, минимальная усадка 0,5-1,5%.Теперь остаётся уложить эффективный утеплитель во внутреннюю полость стены, но с условием, чтобы не было использовано плёнки. Такой утеплитель, помимо низкой теплопроводности, должен обладать паропропускной способностью и  не бояться влажности. Только в этом случае мы получим  теплую и дышащую стену. Всем этим требованиям, к сожалению, может соответствовать лишь небольшой спектр утеплителей, одним из них является утеплитель Эковата. Эковата- это целлюлоза пропитанная бурой. Это абсолютно безвредный утеплитель, сродни дереву, но в свою очередь не горючий, не имеет просадочного эффекта, в котором не заводится разная живность, так как он является хорошим антисептиком. Именно этот материал мы и используем в наших стенах. С помощью задувной машины, осуществляется качественная  задувка Эковаты в стены, что гарантирует безусадочные свойства.

 

Ну и конечно, немаловажно сказать о том, что этот дом строится достаточно быстро. Если мы говорим о доме под «Ключ», как правило, это не более 3-х месяцев. Стоимость тоже меньше, в сравнении с другими качественными технологиями, которые позволят вам сравнить стоимость именно готового, отделанного по всем нормам дома, так как именно в этом скрыт подвох цен.

 

Плюсы данной технологии

1. Теплый дом по СНиП, при стене шириной 185мм.

2. Дышащая стена без какой либо химии (связующих), которая придаёт дому наивысшую степень экологичности.

3. Дом возводится сразу с отделкой и не надо ждать усадок.

4. Качественные узлы соединений так как они произведены на заводе.

5. Качественное утепление, так как наносится механическим способом.

6. Срок строительства готового дома, меньше любой другой технологии.

7. Простота монтажа сводит человеческий фактор ошибок на минимум

8. Высокое качество отделочного материала, так как доска не даёт трещин, не выкручивается, в отличие от профилированного бруса.

9. Отсутствие при строительстве большегрузной спец. техники, что даёт строительство в любых условиях, сохраняя окружающую обстановку.

10. Стоимость строительство готового жилого дома для постоянного проживания по СНиП ниже, чем любая другая технология.

11. Небольшой вес дома, даёт экономию на фундаменте.

12. Такой деревянный дом можно строить круглый год, т.к. полностью отсутствуют "мокрые процессы";

 

Характеристики дома по технологии «Двойной утепленный брус».

1. Толщина стены от 185 мм из них 88мм сухое дерево камерной сушки, утеплитель100 мм.

2. Акустическая изоляция-46д.б

 

Сравнительные показатели                              Двойной утепленный брус 185мм        Клееный брус 200мм

Коэффициент теплосопротивления стены,

Rт, м2*град/Вт                                                                       3,86 расчетн. знач.                      1,52 расчетн.знач.

Количество тепла на обогрев дома, Qт, кВт * ч/год                  7 300                                                     18 700

Средняя температура стены, град. При наружн.

             -30°C, внутри +22°C                                                                17°C                                                          0,8°C

 двойной мини-брус

двойной мини-брус

двойной мини-брус

двойной мини-брус

Теплотехнический расчет утеплителей для строительства домов

Ниже мы приводим строительный теплотехнический расчет этой уникальной технологии строительства домов из профилированного бруса - мини.

мини-брус с утеплителем

мини-брус с утеплителем

Cтены

1. Сосна и ель поперек волокон, g=0.18 Bт/м °С

2.Воздушный зазор

3.Утеплитель - ROCKWOOL, g=0.038 Bт/м °С

4.Пароизоляция.

Расчет произведен толщины стены из профилированного мини бруса для строительства в городе Щёлково, Московской области.

Исходные данные:

1. Температура наиболее холодной пятидневки tн5=-33 °С

2. ГСОП=5960

3. Влажность внутреннего воздуха от 50-60%

4. Внутренняя температура воздуха tв=20 °С

Ведем расчет:

1. Требуемое сопротивление теплопередаче ограждающих конструкций, отвечающих санитарно-гигиеническим и комфортным условиям определяют по формуле:

Rотр =n(tв- tн)/ ? tнvв

и условий энергосбережения по табл.1б{1},

где n-коэффициент, принимаемый в зависимости от положения наружной поверхности ограждающих конструкций по отношению к наружному воздуху по табл.3{1}.

tв-расчетная температура внутреннего воздуха

tн- расчетная зимняя температура наружного воздуха, равная средней температуре наиболее холодной пятидневки обеспеченностью 0.92 по СниП 2.01.01-82.

tн-нормативный температурный перепад между температурой внутреннего воздуха и температурой внутренней поверхности ограждающей конструкции, принимаемых по табл.2{1}.

vв-коэффициент теплоотдачи внутренней поверхности по табл.4{1}

Тогда Rотр =1(20-(-33)/ 4*8.7=1.52 м2 °С/Вт

2. Из условий энергосбережения по табл.1б{1} для ГСОП=5960 расчетное сопротивление составит

Rотр =3.49 м2 °С/Вт

3.49>1.52

Для расчетов принимаем большее значение.

Учитывая, что термическое сопротивление ограждающих конструкций мини бруса с последовательно расположенными однородными слоями следует определять как сумму термических сопротивлений отдельных слоев, преобразуем эту формулу и получим выражение для определения толщины утеплителя при остальных известных компонентах стены из профилированного мини бруса:

t ут=(Rотр -1/vв-1/vн -{ ti }/gi)g= =(3.49-1/8.7-1/23-2 х 0.045/0.18) 0.038=0.108 м

Здесь vн - коэффициент теплоотдачи (для зимних условий) наружной поверхности ограждающей строительной конструкции, по табл.6{1}.

Принимаем толщину утеплителя при строительстве 100 мм - 2 слоя по 50мм.

Пол

Производим расчет утеплителя для конструкции пола.

1. Rотр =0.9(20-(-33)/ 2*8.7=2.74 м2 °С/Вт

2. Из условий энергосбережения по табл.1б{1} для ГСОП=5960 расчетное сопротивление составит

Rотр =4.58 м2 °С/Вт

4.58>2.74

t ут=(Rотр -1/vв-1/vн -{ ti }/gi)g=(4.58-1/12-1/8.7- -0.036/0.18)0.038=0.151м

Принимаем толщину строительного утеплителя 150 мм - в 3 слоя по 50 мм.

 

 

Крыша

Производим расчет утеплителя для конструкции крыши дома из мини бруса профилированного.

1. Rотр =1(20-(-33)/ 3*8.7=2.03 м2 °С/Вт

2. Из условий энергосбережения в строительстве по табл.1б{1} для ГСОП=5960 расчетное сопротивление составит

Rотр =5.18 м2 °С/Вт 5.18>2.03

t ут=(Rотр -1/vв-1/vн -{ ti }/gi)g=(5.18-1/23-1/8.7--0.016/0.18-0.025/0.18) 0.038=0.152 м.

Учитывая, что термическое сопротивление воздушной прослойки не учитывалось в расчетах, принимаем толщину утеплителя 150 мм-3 слоя по 50 мм.

Итак, в результате расчетов получаем следующие величины утеплителей при коэффициенте теплопроводности g=0.038 Bт/м °С:

- стены-100 мм (2х50)

- пол-150 мм (3х50)

- крыша-150 мм (3х50)

 

 

Список литературы:

1. СНиП II-3-79*"Cтроительная теплотехника"

Группа  предлагает клиентам  свою продукцию: жилые деревянные дома, бани, садовые и дачные дома, изготовленных по собственной уникальной технологии из двойного бруса. Предлагаем поставку практически полного перечня различных комплектующих материалов для строительства деревянных домов - межвенцовые утеплители из джута, нагели, винтовые домкраты (компесаторы усадки), современные антисептики, пропитки и краски для дерева.

Есть вопросы по технологии профилированного мини бруса? Звоните!

 

 

 

 

мини брус

Мини брус

 

Двойной мини брус

Двойной мини брус

 

 

 

Мини брус