Баня классик Богатырь 1
Описание
Баня готовая
Баня поставляется как комплектом для самостоятельной сборки так и в готовом виде. баня под ключ
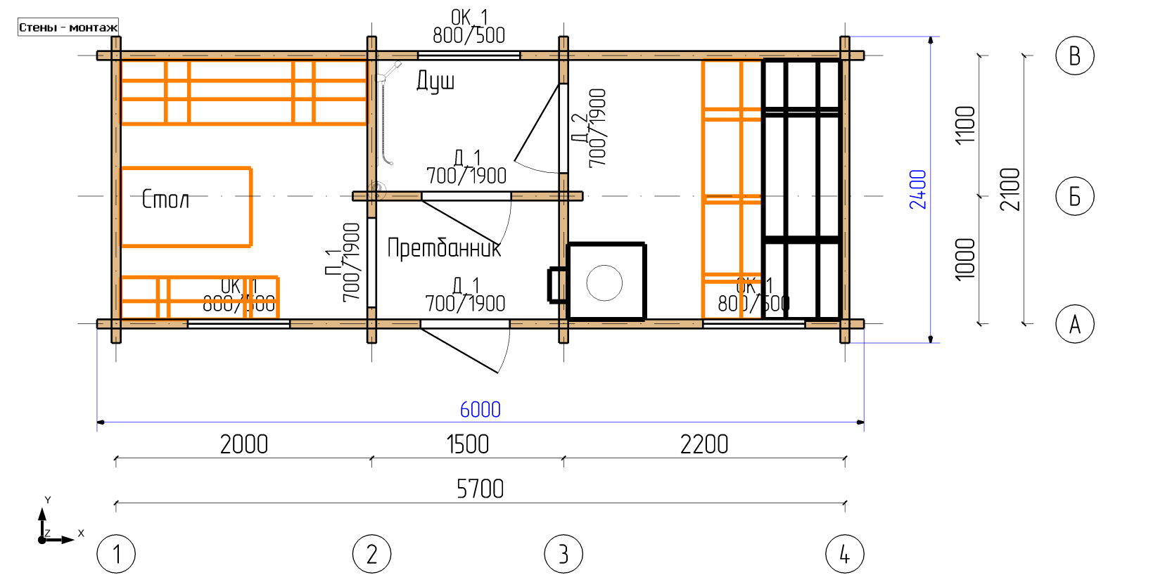
длинна бани 6 м ширина 2.4 м.
Баня в таком исполнении мобильная баня а по функционалу не уступает баням больших размеров при этом является мобильной баней не требует регистрации.
Баня в классическом исполнении изготавливается и бруса технической сушки не подвержена кручению и усадке может сразу эксплуатироваться после установки.
При этом баня не дорогая по цене может поставляться в собранном виде .
Такие бани не подвержены рассыханию и не нужно постоянно следить за баней как в банях бочках. подтяжке обручей и тд





