Проект дома 13
Описание
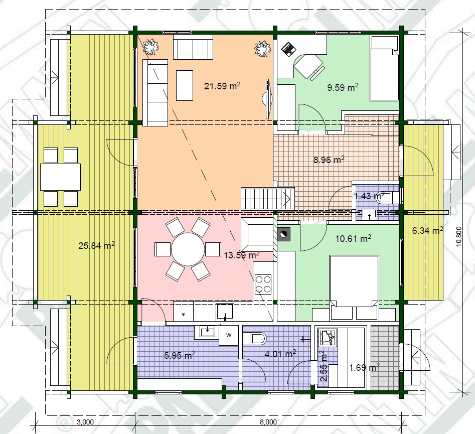
Этот дом с двумя спальнями и мансардой подходит для небольшой семьи.
На первом этаже находится кухня-гостиная, прихожая с лестницей на второй этаж, туалет, паровая баня, душевые, раздевалки и технические помещения.
Из гостиной можно попасть на большую террасу. Номер украшен большими окнами и открывается на крышу галереи.
На втором этаже есть одна большая комната, которую можно использовать как спальню.
Информация о модели
| Количество ванных комнат | 1 |
| Количество спален | 2 |
| Количество этажей | 2 |
| Вариант проживания в течение всего года | |
| Имеет балкон | |
| Имеет камин | |
| Имеет гараж | |
| Имеет сауну | |
| Имеет террасу / балкон | |
| Имеет подсобное помещение | |
| Имеет шкаф | |
| Терраса / балкон | 32 м² |
| Площадь этажа | 129 м² |




