Проект дома 30
Описание
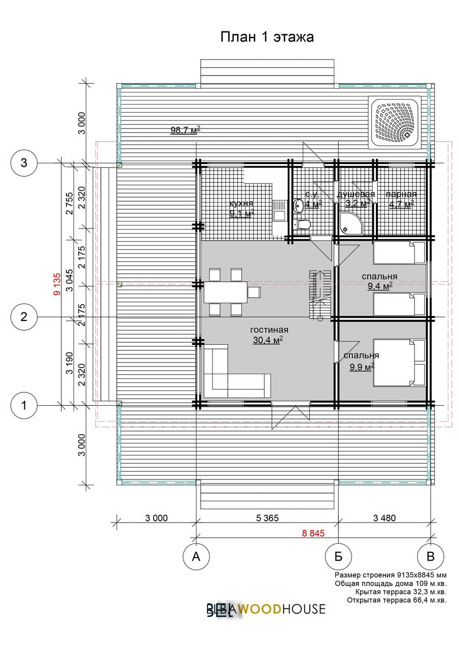
Площадь первого этажа по теплому контуру - 81 м2
Площадь второго этажа - 28 м2 (второй свет - 45 м2)
Площадь крытой террасы - 32,3 м2
Стоимость дома в базовой комплектации - 38300 $
Стоимость домокомплекта стен - 13400 $
(в домокомплект входят стены (без утеплителя), запиленные по проекту)
Утеплитель для стен эковата. Утеплитель для пола и крыши минеральная вата.
В базовую комплектацию входит: свайно-винтовой фундамент, домокомплект зимнего дома с толщиной стены 190 мм, утепленный пол, утепленная крыша, окна (двойной стеклопакет), деревянные межкомнатные двери, входная металлическая дверь, покрытие крыши кровельным материалом (металлочерепица), монтаж дома.
Cрок изготовления и монтажа 70 дней.



