Обратная связь

Проект дома 9

Preloader

Информация о модели

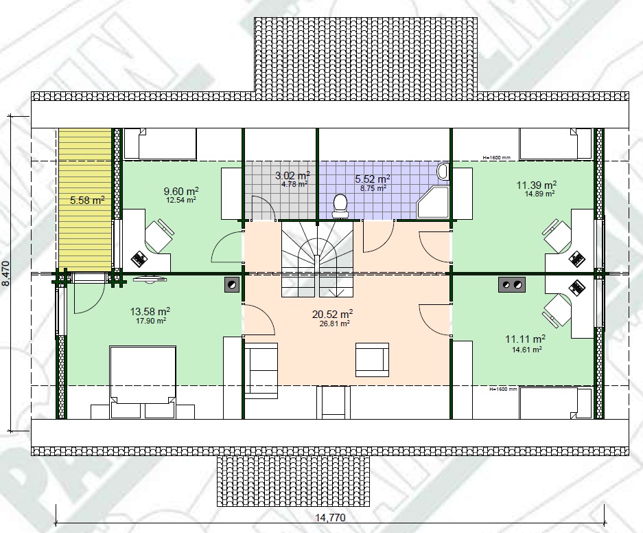
Количество ванных комнат 2
Количество спален 4
Количество этажей 2
Вариант проживания в течение всего года  
Имеет балкон  
Имеет камин  
Имеет гараж  
Имеет сауну  
Имеет террасу / балкон  
Имеет подсобное помещение  
Имеет шкаф  
Терраса / балкон 35 м²
Площадь этажа 237,5 м²