Проект дома 20
Описание
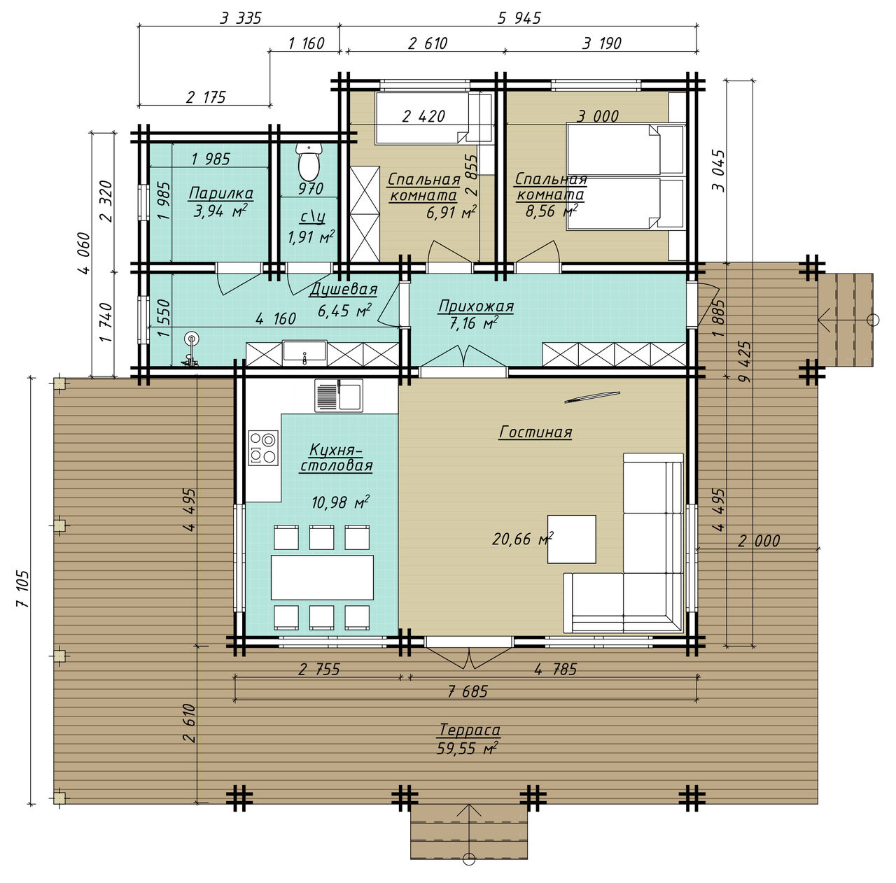
Площадь дома по теплому контуру - 80 м2
Площадь крытых террас - 25 м2
Стоимость дома в базовой комплектации с крытой террасой (без учета открытой террасы) - 31150 $
Стоимость только домокомплекта - 10100 $
(в домокомплект входят стены (без утеплителя), запиленные по проекту)
Утеплитель стен эковата, утеплитель минеральная вата для крыши и пола.
В комплектацию под ключ входит: свайно-винтовой фундамент, домокомплект зимнего дома с толщиной стены 190 мм, утепленный пол, утепленная крыша, окна (двойной стеклопакет), деревянные межкомнатные двери, входная металлическая дверь, покрытие крыши кровельным материалом (металлочерепица), монтаж дома.
Срок изготовления и монтажа 90 дней.


