Обратная связь

Проект дома 48

Preloader

1.5-ЭТАЖНЫЙ БРЕВЕНЧАТЫЙ ДОМ

Площадь: 136 м2

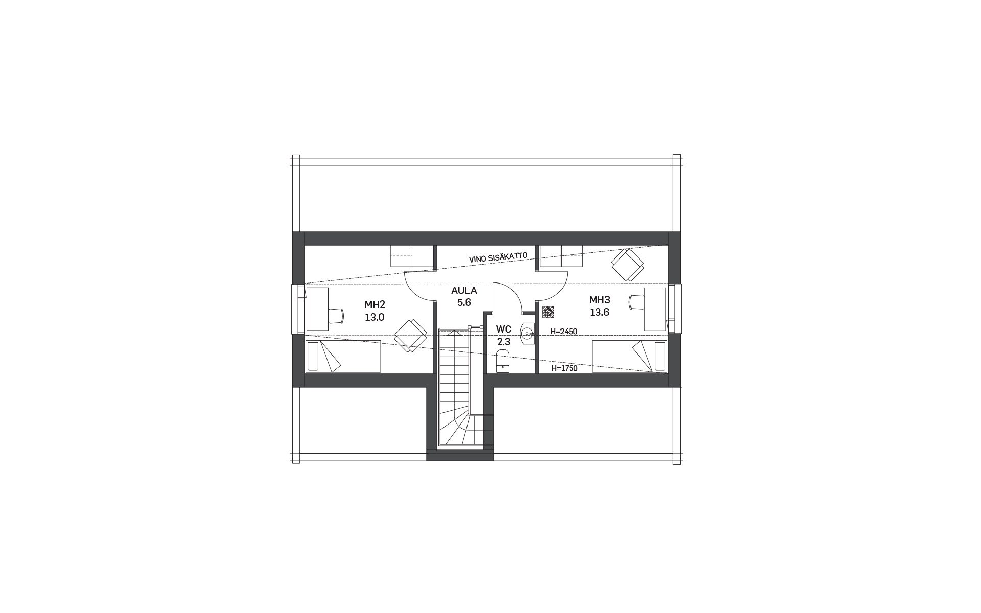
Площадь квартиры: 120 м2

Количество комнат: 3, техническое помещение.

Полутора этажный . Уникальный дом предлагает три спальни, из которых  маленькие внизу, и две большие сверху. В гостиной есть проход удобные террасы, Уютный камин отделяет кухню от гостиной.