Каркасный дом ДК 11
Описание
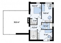
Каркасный дом КД - 011
Размер дома 13740х10640 мм + терраса/балкон
Площадь первого этажа по теплому контуру - 80,0 м2
Площадь второго этажа по теплому контуру - 52,4 м2
Площадь балкона - 36,6 м2
Площадь крыльца - 3,4 м2
СТОИМОСТЬ ДОМА В БАЗОВОЙ КОМПЛЕКТАЦИИ -69300 РУБЛЕЙ
В базовую комплектацию входит: свайно-винтовой фундамент, домокомплект зимнего дома с толщиной стены 182 мм (имитация бруса 20 мм + минеральная вата 150 мм + вагонка 12 мм), утепленный пол, утепленная крыша, окна (двойной стеклопакет), деревянные межкомнатные двери, входная металлическая дверь, покрытие крыши кровельным материалом (ондулин), монтаж дома.
Срок изготовления и монтажа 80 дней


