Каркасный дом ДК 13
Описание
Каркасный дом КД - 013
Размер дома 13840х7240 мм + терраса/балкон 30 кв.м + крыльцо 5 кв.м
Площадь первого этажа по теплому контуру - 100 м2
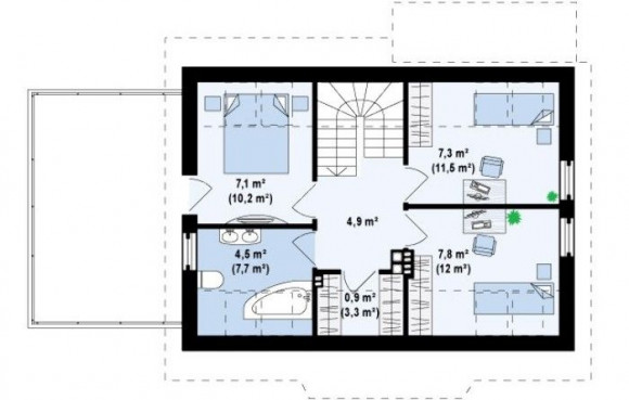
Площадь мансардного этажа по теплому контуру - 49,6 м2
Площадь крытой террасы - 10,0 м2
Площадь открытого балкона - 20 м2
Площадь крыльца - 5,0 м2
СТОИМОСТЬ ДОМА В БАЗОВОЙ КОМПЛЕКТАЦИИ - 69300 РУБЛЕЙ
В базовую комплектацию входит: свайно-винтовой фундамент, домокомплект зимнего дома с толщиной стены 182 мм (имитация бруса 20 мм + минеральная вата 150 мм + вагонка 12 мм), утепленный пол, утепленная крыша, окна (двойной стеклопакет), деревянные межкомнатные двери, входная металлическая дверь, покрытие крыши кровельным материалом (ондулин), монтаж дома.
Срок изготовления и монтажа 80 дней



