Каркасный дом ДК 9
Описание
Каркасный дом КД - 009
Размер дома 8940х7140 мм + терраса 10 кв.м + крыльцо 2 кв.м
Площадь первого этажа по теплому контуру - 63,8 м2
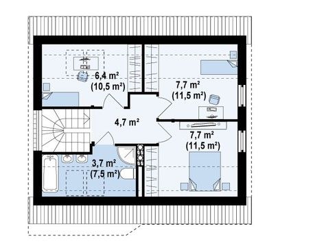
Площадь мансардного этажа по теплому контуру - 63,8 м2
Площадь открытой террасы - 10,0 м2
Площадь балкона - 2,0 м2
СТОИМОСТЬ ДОМА В БАЗОВОЙ КОМПЛЕКТАЦИИ - 52635 РУБЛЕЙ
В базовую комплектацию входит: свайно-винтовой фундамент, домокомплект зимнего дома с толщиной стены 182 мм (имитация бруса 20 мм + минеральная вата 150 мм + вагонка 12 мм), утепленный пол, утепленная крыша, окна (двойной стеклопакет), деревянные межкомнатные двери, входная металлическая дверь, покрытие крыши кровельным материалом (ондулин), монтаж дома.
Срок изготовления и монтажа 80 дней


