Обратная связь

деревянный дом 6

322_original8
318_original5

Цена $15,000.00


Preloader
писание

Основные характеристики:

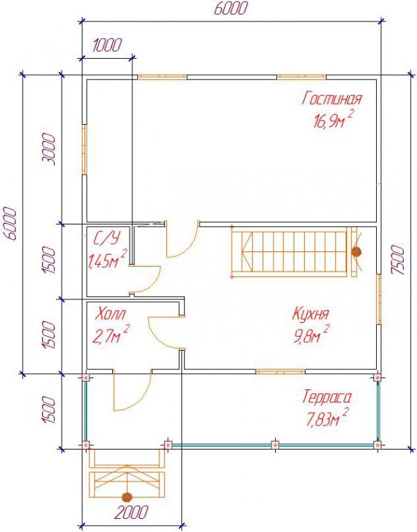
  • Размер дома: 6x8 м
  • Площадь дома: 74,7 м2
  • Кол-во комнат: 4
  • Кол-во санузлов: 1
  • Высота 1 этажа: 2.5 м
  • Высота 2 этажа: 2.1/2.4 м

Технология «Каркасная». либо двойной брус

Монтаж каркаса производится методом «Платформа» по финской технологии с соблюдением всех норм каркасного домостроения.

Этот метод позволяет добиться наивысшего качества и высокой скорости строительства Вашего дома.

Нижняя обвязка:

  • Брус обрезной сечением 100х150 мм е/в.

Каркас внешнего контура:

  • Вертикальные силовые стойки каркаса - доска 50х100мм е/в с шагом не более 600мм;
  • Нижняя обвязка каркаса доска 50х100мм е/в;
  • Верхняя обвязка каркаса доска 50х100 мм е/в;
  • Ригеля и укосины доска 40х100мм е/в;
  • Обвязочный пояс балок перекрытий доска 50х150мм е/в.

Каркас внутренних перегородок:

  • Вертикальные стойки каркаса - доска 50х100мм е/в с шагом не более 600мм;
  • Нижняя обвязка каркаса доска с 50х100мм е/в;
  • Верхняя обвязка каркаса доска 50х100 мм е/в;
  • Ригеля и укосины доска 40х100мм е/в;

Перекрытие пола:

  • Балка 50х150, 100х150 мм е/в с шагом не более 600мм.

Межэтажные перекрытия:

  • Балка 50х100, 50х150, 100х150 е/в мм с шагом не более 600мм.

Черновой пол 1 этажа сплошной:

  • Доска 25х100мм е/в.

Стропильная система:

  • Доска 50х150 мм е/в с шагом не более 600мм;
  • Ригель 50х100, 50х150мм е/в;
  • Обрешетка 25х100мм е/в.

Антисептирование:

Нижняя обвязка и перекрытия пола, черновой пол с внешней стороны - консервирующий трудно вымываемый антисептик.

Ветровлагозащитная мембрана:

Высококачественная диффузионная мембрана «Изоспан А».

Наружная отделка (на выбор либо п.1 либо п.2):

  1. Имитатор бруса камерной сушки 21х145 мм;
  2. Виниловый сайдинг «Docke» (Германия);
  • Вентиляционный зазор (контр обрешетка) - строганный брусок 20х40мм;
  • Кровельные свесы сухая строганная доска 20Х95мм или виниловый сайдинг;
  • Наличники окон и дверей;
  • Потолок терраси балконов и их ограждения - сухой строганный пиломатериал (по проекту).

Кровля:

  • Металллочерепица «Супермонтеррей» сталь 0,45мм с покрытием полиэстерн (Бельгия);
  • Трехслойная гидроветрозащитная мембрана «Изоспан АМ»;
  • Вентиляционный зазор (контр обрешетка) сухой строганный брусок 20х40мм.

Утепление дома:

  • Внешние стены дома— 100 мм плитный базальтовый утеплитель Rockwool;
  • Пол 1 этажа — 100 мм плитный базальтовый утеплитель Rockwool;
  • Межэтажное перекрытие — 50 мм плитный базальтовый утеплитель Rockwool;
  • Кровля— 100 мм плитный базальтовый утеплитель Rockwool;
  • Перегородки — 50 мм плитный базальтовый утеплитель Rockwool.

Пароизоляционная мембрана:

  • Высококачественная двухслойная мембрана Изоспан В
  • Внешние стены дома, пол 1 и 2 этажа, потолок 2 этажа, внутренние перегородки.

Внутренняя отделка стен и потолков (на выбор):

  • Евровагонка сухая категории B;
  • Плиты ВДСПШ «QuickDeck Professional» 12мм для дальнейшей отделки обоями, краской, плиткой и др. чистовыми отделочными материалами;
  • Вентиляционный зазор (контр обрешетка) - строганный брусок 20х40мм;

Материалы можно комбинировать.

Декоративные элементы внутренней отделки:

Плинтус, галтель, соединительные планки, наличники для окон и дверей.

Настил полов (на выбор):

  • Шпунтованная доска 35мм сухая строганная категории В;
  • Плиты ВДСПШ «QuickDeck Professional» 22мм по обрешетке из сухого строганного бруска 20х40мм для дальнейшей укладки на них паркета, ламината, плитки и линолеума.

Материалы можно комбинировать.

Настил пола террас и балконов:

  • Сухая строганная доска 45х145.

Внутренняя лестница:

Деревянная со ступенями и балюстрадой, балясины, перила, тетива. Сухая строганая.

Окна:

  • ПВХ Rehau однокамерные;
  • Поворотно-откидной механизм;
  • Пяти камерный профиль с металлической фурнитурой;
  • Пластиковый подоконник;
  • Металлический отлив.

Межкомнатные двери:

Эко шпон « Афина - беленый дуб» - дверное полотно, дверная коробка, фурнитура.

Входная дверь:

Металлическая 

Крепеж:

Болты, саморезы, оцинкованные пластины, уголки, гвозди, шпильки, анкера, монтажная пена и т.д.