дачный домик с мансардой
Описание
Описание продукта:
Описание товара:
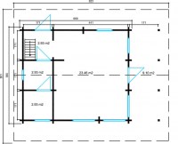
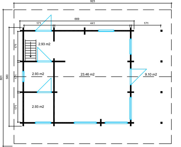
- Размеры с свес крыши: 923 х 801 см
- Blockbohlenaußenmaß дом: 580 х 669 см
- Боковина Высота: 273 см
- Первая высота: 646 см
- Полезная площадь Подвал: около 23,46 кв.м. + 2,93 m² + 2,93 m² + 2,93 m²
- Поверхность Терраса: около 9,10 m²
- Полезная площадь наверху: 29,79 m²
- Объем: около 154,2 м ³
- 3x клееные деревянные для одной двери: около 89 х 203 см
- 2x внутренние двери: ок 70 х 200 см
- 3x роторный / наклона двойное окно: около 128 х 153 см
- 1x роторный / наклоняя одно окно: прибл 88 х 153 см
- 3x роторный / наклона одного окна: около 88 х 88 см
- 1x роторный / наклоняя одно окно: около 58 х 88 см
- Толщина стенки: 70 мм
Включает в себя:
- Сплошные паз и гребень доски деревянные полы (28 мм толщиной) вкл. Плинтус
- Массив дерева крыша шпунтовых досок
- давление обрабатывают доски настилов
- Премиум двери и окна с изоляционной премиум и резиновые уплотнители
- Премиум окна с высоким качеством алюминия воды баров
- качественные двери с Leimholzrahmen
- Высококачественная нержавеющая сталь Пороги
- качественные межкомнатные двери из массива дерева
- Качественные окна с наклоном / функцией поворота
- пропитанные фундаментные балки
- Внутренние резьбовые стержни для защиты от ветра
- , ручка устанавливается и монтажный материал
- Поставка без рубероида
- Доставка в натуральном (без обработки цвета)



