Садовый домик премиум
Описание
Описание продукта:
Описание товара:
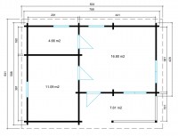
- Размеры: 789 х 598 см
- внутренний: 769 х 578 см
- Боковина высота: 232 см
- Первая высота: 336 см
- Жилая площадь жилых комнат: примерно 16,80 m² + 11,09 m² + 4,66 m²
- Терраса: около 7,61 m²
- Объем: примерно 118.5 м ³
- Клееный деревянный одной двери: 90 х 193 см
- 2x внутренние двери: ок 80 х 199 см
- 3 окна: около 92 х 92 см
- 2ва двойных окно: около 134 х 105 см
- Толщина стенки: 70 мм
Включает в себя:
- Сплошные паз и гребень доски деревянные полы (28 мм толщиной) вкл. Плинтус
- Массив дерева крыша шпунтовоная доска 20 мм
- (. Непромокаемые ветер и) все стены с 4x Eckausfräsung
- Премиум двери и окна с изоляционной премиум и резиновые уплотнители
- качество одной двери с
- Высококачественная нержавеющая сталь Пороги
- качество 2x межкомнатные двери из массива дерева
- пропитанные фундаментные балки
- Внутренние резьбовые стержни для защиты от ветра
- , ручка устанавливается и монтажный материал
- Поставка кровля битумная черепица
- Доставка в натуральном (без обработки цвета)
провести время всего за несколько дней в сельской местности? Начните выходные без особого планирования с семьей? В саду и отдых Дом предложения на 41 м² этаже все удобства, для того, чтобы реализовать эти желания. Три разные комнаты для расслабились вместе, обеспечивая при этом достаточно места, чтобы удалиться на отдых. Большая веранда приглашает для совместного кофе-брейк или вечерних торжеств среди друзей, хорошо защищенных от солнца и дождя. В течение года вы можете наслаждаться отпуск домой, для 70мм толщина стенки и качество двойное остекление держать холод, ветер и погода за окном. И если вы в деталях индивидуальной поддержки: Мы сделаем коттедж -70 ! в короткие сроки


