Садовый домик № 36
Описание
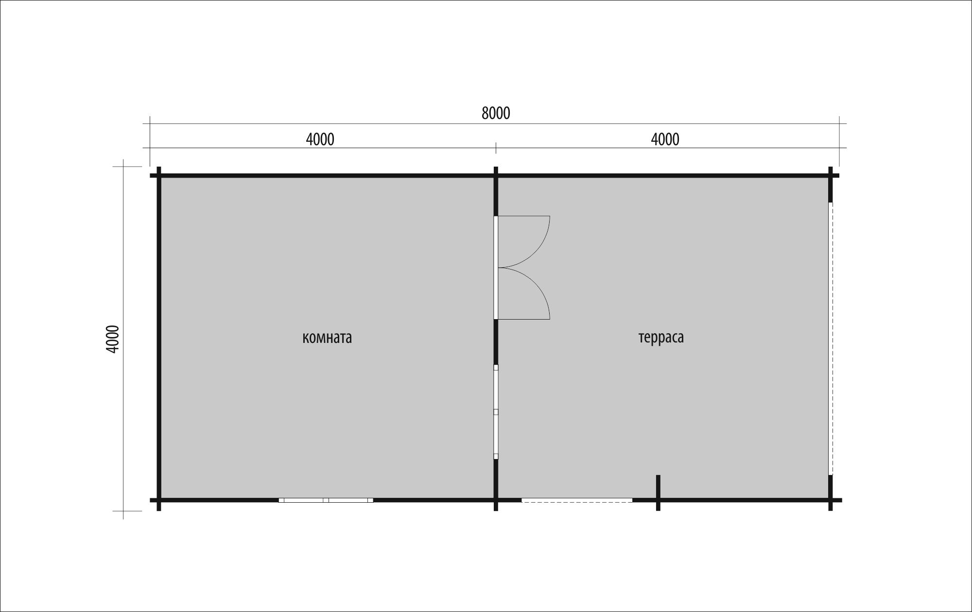
Характеристики:
Габариты (ширина/глубина/высота),
мм: 8000/4000/3100;
Материал: шпунт толщиной 135*45,
либо брус 135*70мм;
S пола: 28,8 м²; S крыши: 37,44 м²;
В комплект входит:
Стены: сухая (8-12%) профилированная доска с зарезанными чашами (по проекту)
Двери: деревянные филёнчатые
Окна: деревянные
Пол: шпунтованная доска 35мм
Подшивная доска на потолок
Крыша: мягкая черепица – Шинглас (цвет бордовый, зеленый, коричневый на выбор )
Обвязка из бруса -150*100, (по проекту)


