Обратная связь

Садовый домик 57

садовый домик 171
садовый домик 172
садовый домик 173
садовый домик 174

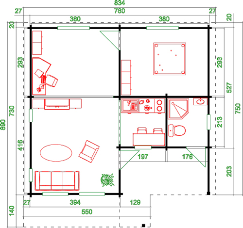
Общая площадь 70,4 m2
Размеры стен 800*880 cm
Строительная площадь 74,23 m2
Площадь нетто 65,51 m2
Объем 148,45 m3
Терраса в комплекте
Площадь террасы 15,18 m2
II этаж / спальня 19,5 m2
Толщина стены 70 mm
Высота стены 252 cm
Высота гребня 380 cm
Площадь крыши 74,4 m2
Вынос крыши 140 cm
Наклон крыши 19 °
Расход кровли 27 пакетов
Расход рулонного материала 10 рулонов
Цена $14,000.00


Preloader

 комплект поставки наших летних домиков входят:

  • Пропитанная рама-основание, напольные лаги и настил для террасы (если терраса входит в комплект)
  • Шпунтованная доска для настила, 26х90 мм или 28х90 мм, плинтуса
  • Все настенные детали
  • Открываемые окна со стеклопакетом, с фурнитурой, внутренние и внешние наличники.
  • Двери, со стеклопакетом или цельное дерево (в зависимости от модели), порожек покрыт нержавейкой или алюминием, с замком и ручками, вкл. внутренние и внешние наличники.
  • Кровельная конструкция с шпунтованной доской 20х90 мм, боковые и торцовые доски.
  • Штормовые крепления
  • Принадлежности для монтажа
  •  Чертежи