Садовый домик 61
Общая площадь 30,3 m2
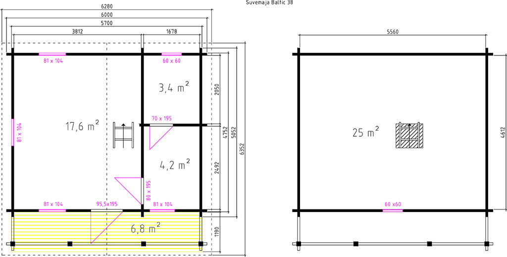
Размеры стен 600*505 cm
Строительная площадь 39,9 m2
Площадь нетто 50,83 m2
Терраса в комплекте
Площадь террасы 6,82 m2
II этаж / спальня 25,64 m2
Толщина стены 70 mm
Высота стены 247 cm
Высота гребня 411 cm
Площадь крыши 46 m2
Вынос крыши 130 cm
Наклон крыши 30 °
Расход кровли 17 пакетов
Расход рулонного битума 5 рулонов
Размеры стен 600*505 cm
Строительная площадь 39,9 m2
Площадь нетто 50,83 m2
Терраса в комплекте
Площадь террасы 6,82 m2
II этаж / спальня 25,64 m2
Толщина стены 70 mm
Высота стены 247 cm
Высота гребня 411 cm
Площадь крыши 46 m2
Вынос крыши 130 cm
Наклон крыши 30 °
Расход кровли 17 пакетов
Расход рулонного битума 5 рулонов
Цена $7,000.00
Описание
комплект поставки наших летних домиков входят:
- Пропитанная рама-основание, напольные лаги и настил для террасы (если терраса входит в комплект)
- Шпунтованная доска для настила, 26х90 мм или 28х90 мм, плинтуса
- Все настенные детали
- Открываемые окна со стеклопакетом, с фурнитурой, внутренние и внешние наличники.
- Двери, со стеклопакетом или цельное дерево (в зависимости от модели), порожек покрыт нержавейкой или алюминием, с замком и ручками, вкл. внутренние и внешние наличники.
- Кровельная конструкция с шпунтованной доской 20х90 мм, боковые и торцовые доски.
- Штормовые крепления
- Принадлежности для монтажа
- Чертежи





