дачный дом 18
Описание
Описание продукта:
Описание товара:
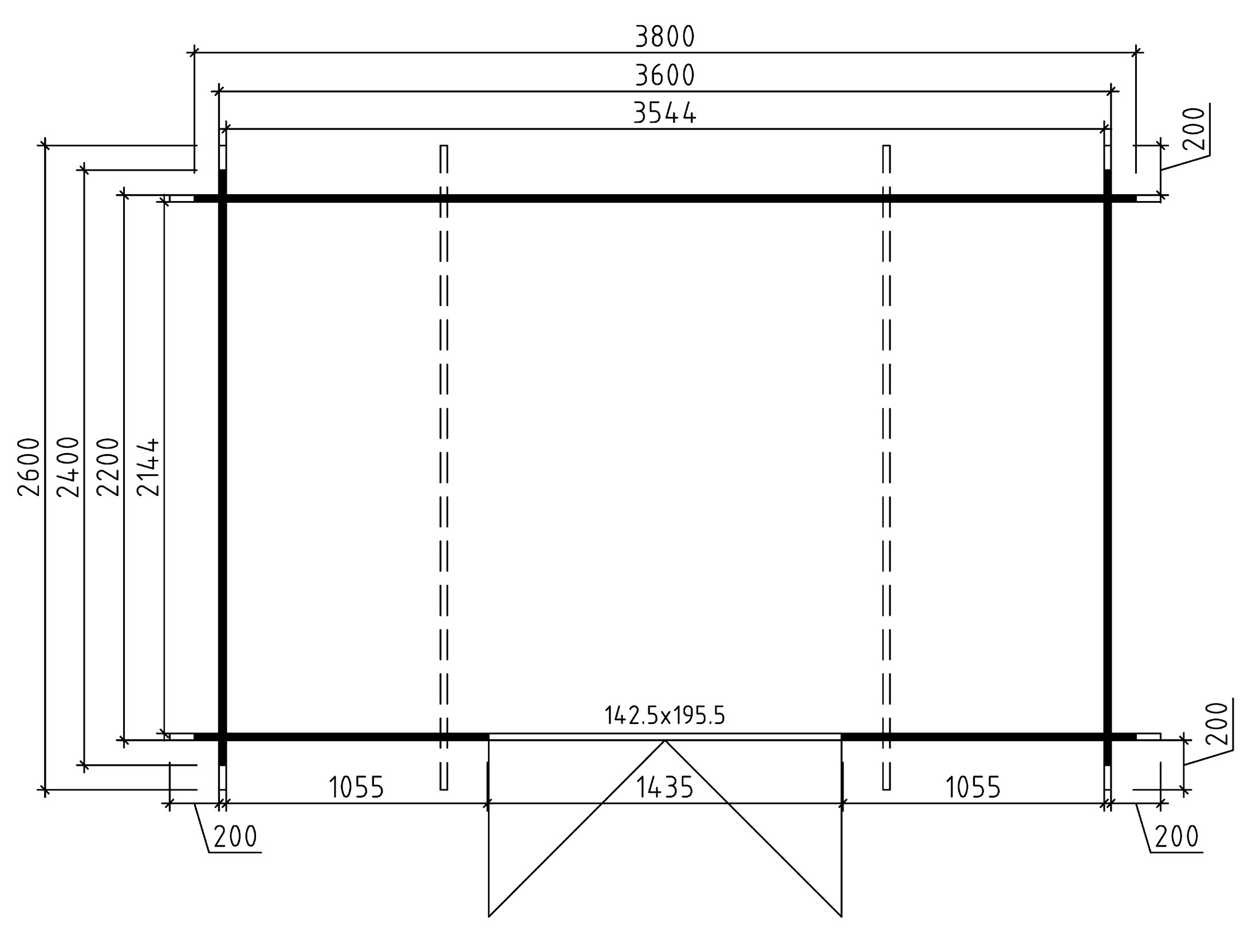
- Размеры: 380 х 260 см
- Sockelmaß: 360 х 220 см
- Площадь: 7,92 m²
- Боковина высота: 228 см
- Общая высота: 270 см
- Объем: около 19,1 м ³
- Клееные деревянные двойные двери: около 142 х 195 см
- Толщина стенки: 44 мм
Включает в себя:
- Половая доска из массива паз и гребень доски вкл. Плинтус
- Массив дерева крыша шпунтовых досок
- (. Непромокаемые ветер и) все стены с 4x
- Остекление с дверью из стекла (матового стекла)
- качества двойная дверь
- качество Пороги алюминиевые
- пропитанные фундаментные балки
- , ручка устанавливается и монтажный материал
- Поставка без рубероида
- Доставка в природе без какой-либо обработки цвета

