дачный домик №10
Описание
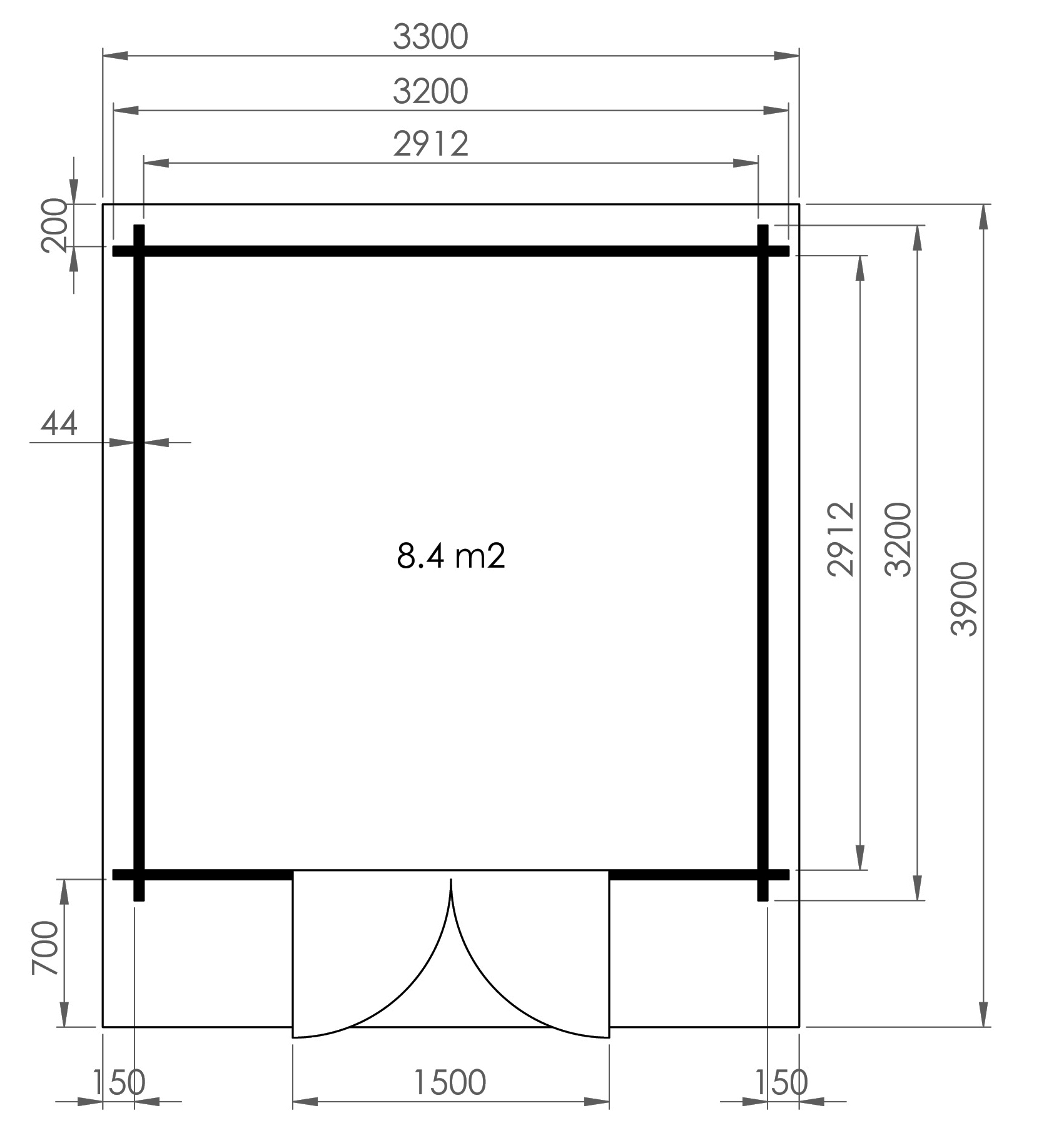
Описание продукта: Садовый дом
Описание товара:
- Размеры: 320 х 320 см
- Sockelmaß: 300 х 300 см
- Боковина высота: 208 см
- Общая высота: 256 см
- Площадь: 8,5 m²
- Объем: около 20,2 м ³
- сверхвысокая клееные деревянные двойные двери: около 154 х 198 см
- Навес: 70 см
- Толщина стенки: 44 мм
Включает в себя:
- Половая доска из массива паз и гребень доски вкл. Плинтус
- Массив дерева крыша шпунтовых досок
- (. Непромокаемые ветер и) все журналы с 4x Eckausfräsung
- Остекление в двери премиум Тепловое
- качество Пороги алюминиевые
- пропитанные фундаментные балки
- Замок, запорная арматура, монтажные материалы и монтажные схемы
- Поставка без рубероида
- Доставка в природе без какой-либо обработки цвета

