Садовый домик 73
Описание
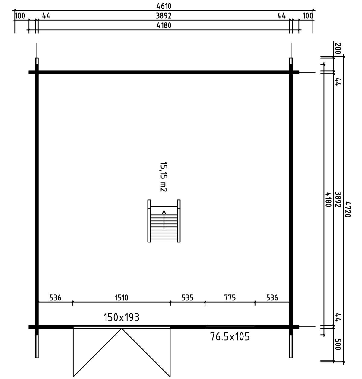
Описание товара:
- Внешние размеры: 418 x 418 см
- Размер гнезда: 398 x 398 см
- Высота боковой стенки: около 230 см
- Общая высота: около 430 см
- Объем: около 46,9 м³
- Полезный цокольный этаж: около 15,15 м²
- Полезная спальная зона: около 7,78 м²
- 1x двойная дверь: около 150 x 193 см
- 1x одно окно: около 76,5 x 105 см
- 1x одно окно: около 59 x 59 см
- Навес: около 50 см
- Толщина стенки: 44 мм











