Баня Русская 7
Описание
Технические характеристики:
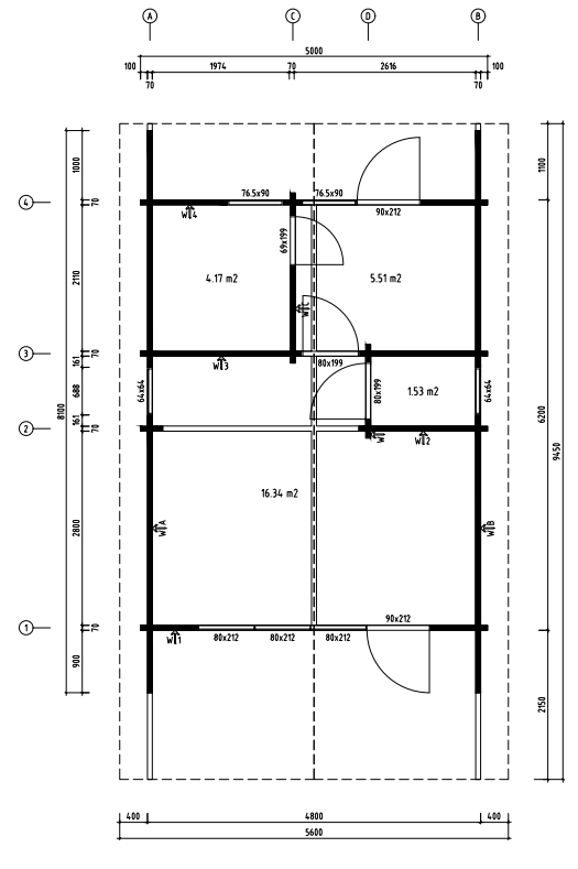
Внутренняя площадь:
27,6
Профиль стены:
70 мм
Тип крыши:
Двускатная крыша
Количество этажей:
1
Количество комнат:
4
Тип дверного стекла для сауны:
Закаленное стекло
Базовые размеры:
500 х 810 см
Тип наружной двери:
Входная дверь
Высота кровли:
337,5 см
Площадь крыши:
55,4
Терраса м2:
15.1
Внешние размеры двери:
69 х 199 см
Тип межкомнатных дверей:
Межкомнатные двери из массива дерева
Размеры межкомнатной двери:
80 х 199 см (2)





