баня готовая №6
Описание
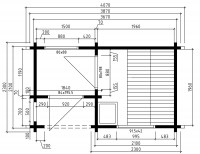
Описание товара: Сауна Дом Basel 70
Описание товара:
- Размер: 387 х 230 см
- Sockelmaß: 367 х 210 см
- Боковина Высота: 220 см
- Общая высота: 266 см
- Клееный деревянный одной двери: около 84 х 195 см
- Сауна внутренние двери: 80 х 195 см
- Окно 1x: около 80 х 80 см
- Окно 1x: около 91 х 42 см
- Толщина стенки: 70 мм
- Половая доска из массива шпунт и гребень доски
- Массив дерева крыша шпунтовых досок
- Изолированный сауна одеяло готовых элементов
- (. Непромокаемые ветер и) все журналы с 4x Eckausfräsung
- Остекление наружной двери и окна Isoglas
- качество одной двери с Leimholzrahmen (безопасное стекло)
- качество сауны внутренние двери со стеклом разрезом
- 2x дополнительные широкие сауны из осины (шириной 60 см)
- стабильная Спинка и банк апертура древесины осины
- большой пол решетки 60 х 62 см
- 1x подголовника из древесины осины
- Плита ограждение из массива дерева
- Порогу алюминий на передней двери
- пропитанные фундаментные балки
- пропитанные террасные доски
- Контроль ветра через внутренние шпилек
- Lock, ручка устанавливается и монтажный материал
- Доставка вкл. Рубероид
- Доставка в натуральном (без обработки цвета)
Примечание: Электрическое подключение сауны должно быть сделано только квалифицированным электриком



_200x200.jpg)