Обратная связь

готовая баня № 8

Preloader

Описание товара: Сауна Дом Пори-70

 Описание товара:

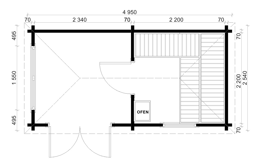
  • Размер: 488 х 254 см
  • : 468 x 234 см
  • : 220 х 220 см
  • Сауны: 220 х 220 см
  • Боковина Высота: 220 см
  • Общая высота: 254 см
  • Клееные деревянные двойные двери: около 154 х 191 см
  • Сауна внутренние двери: 80 х 190 см
  • Круглые окна фиксированный: диаметр около 80 см
  • Толщина стенки: 70 мм

Включает в себя:  

  • Половая доска из массива шпунт и гребень доски 
  • Массив дерева крыша шпунтовых досок
  • Изолированный сауна одеяло готовых элементов
  • (. Непромокаемые ветер и) все журналы с 4x Eckausfräsung
  • Остекление наружной двери и окна Isoglas
  • качества двойная дверь с Leimholzrahmen
  • качество сауны внутренние двери со стеклянной вставкой (безопасное стекло)
  • 3x дополнительные широкие сауны из осины (2x60cm / 1x50cm)
  • стабильная Спинка и банк апертура древесины осины
  • 2x подголовники древесины осины
  • Плита ограждение из массива дерева
  • Порогу алюминий на передней двери 
  • большие современные круглые окна с изоляционным стеклом
  • пропитанные фундаментные балки
  • Lock, ручка устанавливается и монтажный материал
  • Поставка без рубероида 
  • Доставка в натуральном (без обработки цвета)

Примечание: Электрическое подключение сауны должно быть сделано только квалифицированным электриком