Обратная связь

готовые бани под ключ №4

ббг 6
б 6
б6
бгг6
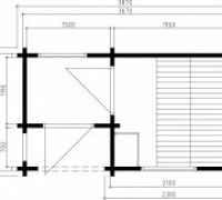
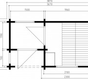
Sauna-Lisette-Groundplan-180x162

Баня из бруса 70 мм
Цена $3,100.00


Preloader