Баня 999 с террасой
Описание
Описание
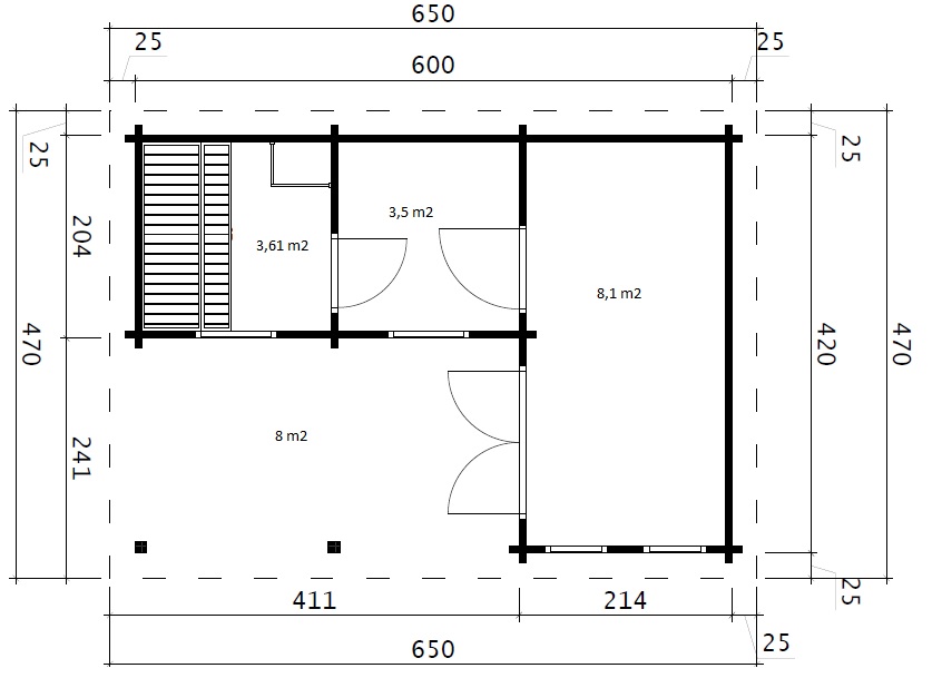
| Внешняя длинна: | 6 м |
| Внешняя ширина: | 4,2 м |
| Внутренняя Высота: | 2,45 м |
| Высота хребта: | 2,83 м |
| Толщина стен: | 70 мм либо 45 мм |
| Внутренняя площадь: | 15,2 m² (сауна комната 3,6 м²) |
| Крыша: | Ca 30 m² битумная черепица |
| Пол: | 28 мм |
| Дверь Размер отверстия: | 1,43 х 1,95 м; внутренние двери 0,8 х 1,98 м, сауна дверь 0,7 х 1,94 м |
| стиль двери | |
| Количество окон: | 4 (2 по 0,5 х 1,8 м) (2 по 0,7 х 0,5 м) |
| Остекление Материал: | 3 мм Стекло, с двойным остеклением |
| Материал: | сосна ель. |




