Готовая баня № 9
Описание
Описание продукта:
Описание товара:
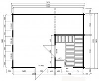
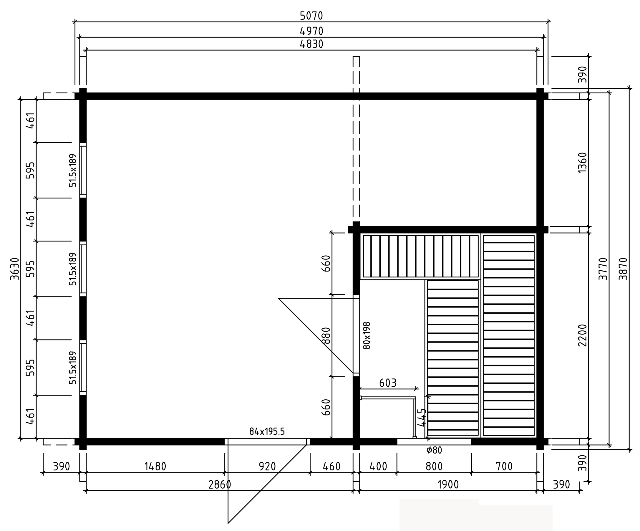
- Размер: 507 х 387 см
- внутренний: 497 х 377 см
- Сауны: 190 х 220 см
- Боковина Высота: 220 см
- Общая высота: 253 см
- Крыша нагрузка: 140 кг / м²
- Клееный деревянный одна дверь закрыта: примерно 84 х 195 см
- Сауна внутренние двери: 80 х 195 см
- Круглые окна фиксированный: диаметр около 80 см
- 3x высота окна элементы: приблизительно 52 х 189 см
- Толщина стенки: 70 мм
Включает в себя:
- Половая доска из массива шпунт и гребень доски
- Массив дерева крыша шпунтовых доска
- парная обшита вагонкой ольхи
- Остекление наружной двери и окна
- качество одной двери с Leimholzrahmen
- качество сауны внутренние двери со стеклянной вставкой (безопасное стекло)
- 3x дополнительные широкие сауны из осины (1x60cm / 1x50cm / 1x30cm)
- стабильная Спинка и банк апертура древесины осины
- большой пол решетки 60 х 62 см
- 2x подголовники древесины осины
- Плита ограждение из массива дерева
- Порогу алюминий на передней двери
- большие современные круглые окна с изоляционным стеклом
- 3x глубина пол Fensterelemnte
- пропитанные фундаментные балки
- Контроль ветра через внутренние шпилек
- Lock, ручка устанавливается и монтажный материал
- Поставка без рубероида
- Доставка в натуральном (без обработки цвета)
Примечание: Электрическое подключение сауны должно быть сделано только квалифицированным электриком


_200x200.jpg)



