баня 999 камфорт
Описание
Описание
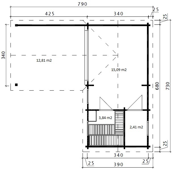
| Внешняя ширина: | 7,2 м |
| Внешняя глубина: | 3,4 м |
| Веранда: | 3 х 4 м 28мм пропитанные настилы |
| Внутренняя обрезная Высота: | 2,30 м |
| Высота хребта: | 2,82 м |
| Толщина стен: | 70 мм |
| Внутренняя площадь: | 22 m² (помещение сауны 3,85 m²) |
| Крыша: | Ca 60 м² вкл. |
| Пол: | 28 мм доски пола и 28 мм террасной доски |
| Дверь Размер отверстия: | 1,43 х 1,95 м + внутренняя дверь 0,8 х 1,98 м + сауна дверь 0,69 х 1,93 м |
| стиль двери | Часть застеклен, двойная дверь; Внутренняя дверь без остекления; Специальная сауна дверь из 8-мм закаленного стекла (безопасное стекло), с легким бронзовым отливом. |
| Количество окон: | 2 открывая окна с двойным остеклением (0,7 х 0,4 м), 1 окно открытия, с двойным остеклением (0,5 х 1,79 м) |
| Остекление Материал: | Двойное остекление, 3 мм остекленная |
| Материал: | сосна ель |
| Дополнительная информация: | О |



