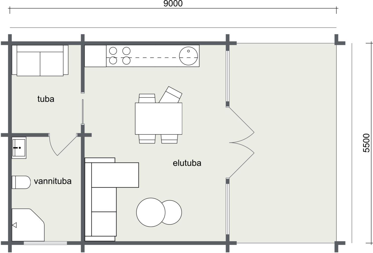
Садовый домик 68
Описание
комплект поставки наших летних домиков входят:
- Пропитанная рама-основание, напольные лаги и настил для террасы (если терраса входит в комплект)
- Шпунтованная доска для настила, 26х90 мм или 28х90 мм, плинтуса
- Все настенные детали
- Открываемые окна со стеклопакетом, с фурнитурой, внутренние и внешние наличники.
- Двери, со стеклопакетом или цельное дерево (в зависимости от модели), порожек покрыт нержавейкой или алюминием, с замком и ручками, вкл. внутренние и внешние наличники.
- Кровельная конструкция с шпунтованной доской 20х90 мм, боковые и торцовые доски.
- Штормовые крепления
- Принадлежности для монтажа
- Чертежи

