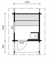
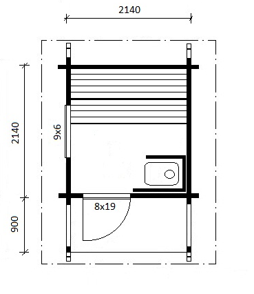
купить не дорогую мобильную баню вы можете не дорого у компании белвудхаус длинной от 3 до 7 метров под ваш проект бани мы производим по этому вы можете заказать как любую толщину бруса так проект бани по вашим пожеланием.
Спасибо, что оставили заявку. Наш менеджер свяжется с Вами в ближайшее время!
Запрос не был отправлен. Видимо какие-то проблемы с сервером. Попробуйте позже или свяжитесь с нами по телефону