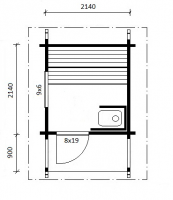
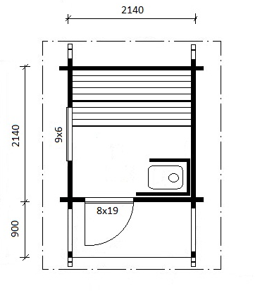
баня мобильная под ключ
мини не дорогая баня на 1 отделение с террасой для дачи
Спасибо, что оставили заявку. Наш менеджер свяжется с Вами в ближайшее время!
Запрос не был отправлен. Видимо какие-то проблемы с сервером. Попробуйте позже или свяжитесь с нами по телефону